Proyecto

Acondicionamiento de sala de exploración para la instalación de una Gammacámara

Cliente

Hospital General Universitario Santa Lucía

Ciudad

Cartagena, Murcia

Fecha

2022

Gammacámara

Acondicionamiento de sala de exploración para la instalación de una Gammacámara
NECESIDAD:
 
La intervención en el Hospital General Universitario Santa Lucía de Cartagena plantea la necesidad de renovar parte de su actual equipamiento médico con el objetivo de mejorar el servicio al paciente y sus instalaciones, buscando espacios mucho más amables y con una estética más actual.
 
OBJETIVO:
 
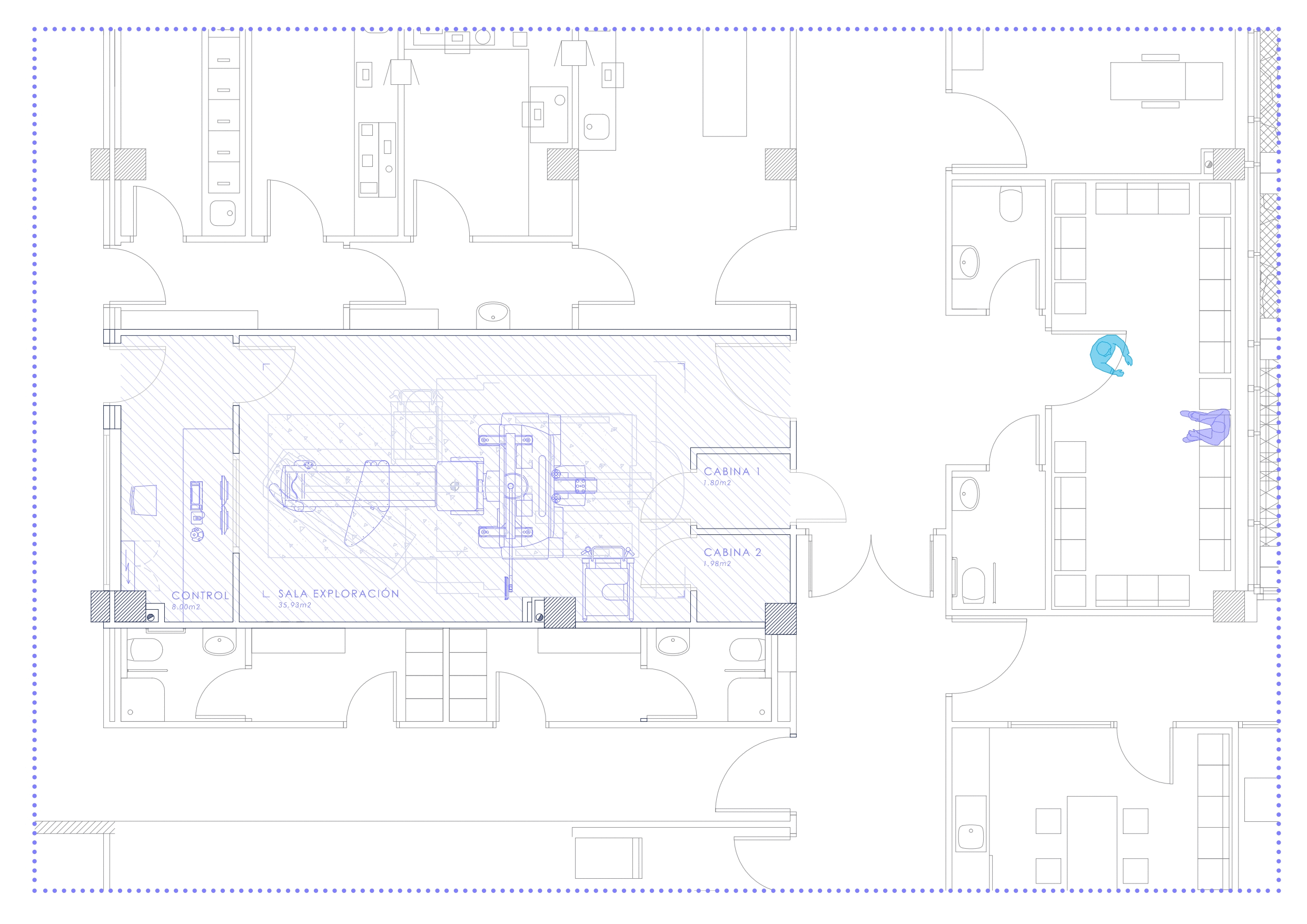
Este proyecto trata de acondicionar una sala de exploración para instalar una nueva Gammacámara SPECT-CT. Para su instalación se necesitarán dos Salas de Exploración, una Sala de Control y dos cabinas para uso del paciente.
 
ESTRATEGIA DE PROYECTO:
 
El acondicionamiento de la sala se planteó para mejorar la calidad de los usuarios y proporcionarles un mejor servicio al instalar una nueva Gammacámara. De este modo, por un lado, se proponen espacios más amables y con una estética actual y, por otro, materiales de fácil mantenimiento y durabilidad, cumpliendo, en cualquier caso, con los requerimientos técnicos del entorno hospitalario. Así pues, se utilizan texturas y acabados que aporten calidez, buscando una sensación de espacios más abiertos y luminosos.